Wohnhaus Gashouder
Eindhoven (NL)
Einfamilienhaus
Planung und Ausführung 2022 - 2024
Zusammenarbeit mit: Dirk Mol
Bilder: Max Hart Nibbrig

Das «Zuiverhuis», ein ehemaliges, geschütztes Industriegebäude in Eindhoven, wurde in eine familiengerechte Wohnung umgewandelt.

Archivbild des NRE Areals. Hinter der grosse Gastank ist das «Zuiverhuis» sichtbar.

Der Strassenraum gehört dem Quartier. Die Bewohner:innen der zwei Wohnungen, verfügen jeweils über eine grosszügige Dachterrasse.

Das NRE Areal wurde neu entwickelt mit viel Partizipation und Gemeinschaft. Das «Zuiverhuis» ist zwischen neue und bestehende Bauten eingebettet.
Die neuen Fenstertüren ermöglichen einen direkten Kontakt mit der Nachbarschaft. Während des Kochens versammelt sich die Familie um die Arbeitsplatte aus Terrazzo, welche von einem Familienmitglied selbst hergestellt wurde.

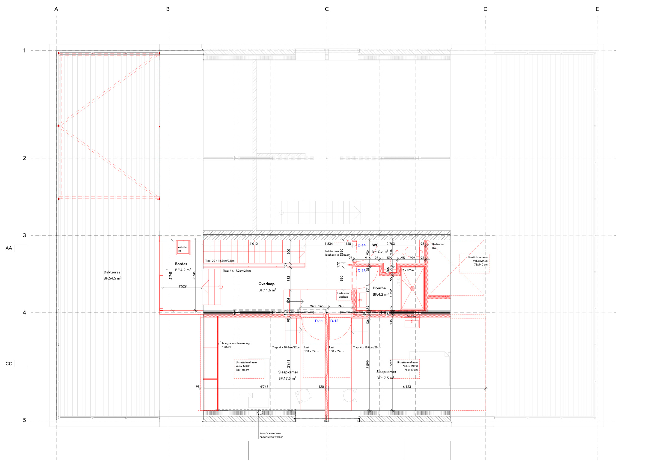
Die Zimmer der Kinder als auch die Dachterrasse befinden sich im Obergeschoss. Bis ins bestehende Oblicht kann man sich einen Platz im Haus suchen.
Das Erdgeschoss und das Obergeschoss überlagert.
Der Bereich der Eltern im Erdgeschoss, der am Ende des Grundrisses liegt, besteht aus einer Enfilade aus Arbeitszimmer, Schlafzimmer und Badezimmer.
Die Kinder haben ihrem Bereich im Obergeschoss. Es gibt einen vom Oblicht erhellten Leseplatz, je ein Büro am Fenster und ein geteiltes Badezimmer.