Brunnenhof Etappe 2
Zürich
Erweiterung Sekundarschule
Wettbewerb 2023
Fläche: 4'400 m2
Landschaft: Sabine Kaufmann Landschaftsarchitektin
Statik: Walt Galmarini AG
Baumanagement: Ghisleni Partner
Visualisierung: Robert Dobrowolski / DOM Images

Radiostudio in 1937, Architekt Otto Dür

Das Ensemble im Quartier.

Als letzter Baustein auf dem Areal wird das Konglomerat an der Nordostseite weitergebaut.

Das ideenreiche Gebäude von Otto Dürr wird im Neubau neu interpretiert: Guckfenster in die Turnhalle, Sitzbänke aus Naturstein, die markante Uhr, aber auch die, über Kreuz gespannte Kassettendecke, finden jeweils ihre Neuintepration.

Ausschnitt Wandbild von Oscar Lüthy, 1939

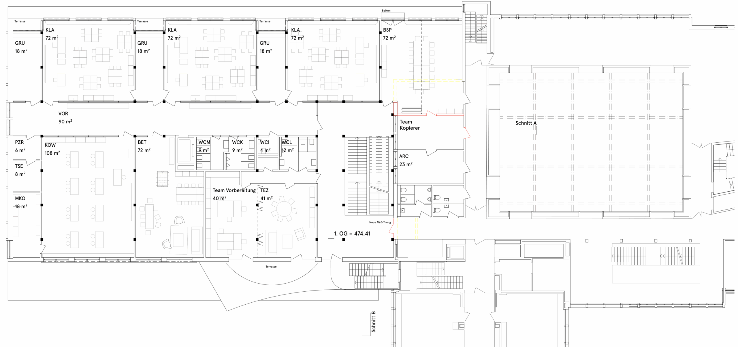
In allen Geschossen gibt es die Möglichkeit vom einen in den anderen Trakt hinüber zu gehen.

Die Fassade an der Hofwiesenstrasse lässt zum Quartierplatz der Wohngebäude ein neues Gegenüber entstehen.

Sicht entlang der Hofwiesenstrasse.